Produktai
HV skirstomieji įrenginiai
  • HV skirstomieji įrenginiaiHV skirstomieji įrenginiai
  • HV skirstomieji įrenginiaiHV skirstomieji įrenginiai
  • HV skirstomieji įrenginiaiHV skirstomieji įrenginiai
  • HV skirstomieji įrenginiaiHV skirstomieji įrenginiai
  • HV skirstomieji įrenginiaiHV skirstomieji įrenginiai

HV skirstomieji įrenginiai

„Kyn28-12 HV“ skirstomuosius įrenginius gamina Kinijos gamintojas Kexun. Tai gali realizuoti intelektualų sistemos valdymą ir turi nuotolinio valdymo, telemetrijos, nuotolinio ryšio ir nuotolinio reguliavimo funkcijas. Lauko tinklas kontroliuojamas per „Can Bus“ su ryšio sąsaja. Tuo pačiu metu ji turi „penkias atsargumo priemones“, kad būtų galima realizuoti grandinės valdymą, apsaugą ir stebėjimą.
Modelis: KYN28-12
Prekės ženklas: Kexr

● Naudojant sąlygas

▶ Oro temperatūra: -10 ~ 40 ℃;

▶ Aukštis: žemiau 1000 m

▶ Drėgmė: santykinė drėgmė: dienos vidurkis mažesnis nei 95%, o mėnesinis vidurkis yra ne didesnis kaip 90%

▶ Vandens garų slėgis: Dienos vidutinė vertė yra ne didesnė kaip 2,2 kPa, o vidutinė mėnesio vidutinė vertė yra ne didesnė kaip 1,8 kPa ;; Kai staiga nukrenta temperatūra, gali atsirasti kondensacija, lydima taršos. Šis produktas yra tinkamas šioms dviem aplinkos sąlygoms, kurios yra sunkesnės nei įprastos sąlygos:

(1) kondensacija nėra dažna (vidutiniškai ne daugiau kaip du kartus per mėnesį) ir jis yra šiek tiek užterštas;

(2). Paprastai nėra kondensacijos (vidutiniškai ne daugiau kaip du kartus per metus), o tai yra rimtai užteršta

▶ HV skirstomieji įrenginiai yra tinkami atšiaurioms vietoms, kur nėra pavojaus ugnies ir sprogimo, ir pakanka rimtos taršos, kad būtų galima korozuoti metalus ir sunaikinti izoliaciją

▶ Kyn28-12 tipo HV skirstomieji įrenginiai tinka vietoms, kur nėra smurtinės vibracijos, iškilimų ir vertikalaus polinkio neviršija 80.


Pastaba:

(1) HV skirstomieji įrenginiai leidžia laikyti ir transportuoti -30 ℃ esant -30 ℃

(2) kai aukštis viršija 1000 m, jis turi būti tvarkomas pagal B/2102 "Techniniai aukštos įtampos elektrinių aparatų reikalavimai naudojant aukščio plotus“; Kai aukštis neviršija 2000 m, žemos įtampos pagalbinei įrangai nereikia imtis jokių priemonių;

(3) Kai faktinės naudojimo sąlygos skiriasi nuo aukščiau pateikto, dėl to vartotojas ir gamintojas dera.


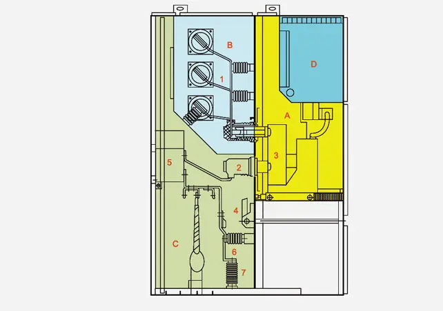
◆ HV skirstomąjį įrenginį sudaro dvi dalys: fiksuotos spintelės korpusas ir nupiešta dalis (trumpas rankinisvedis) (HV skirstomojo įrenginio struktūros schemos schemos pav. Žr. Paveikslėlį). Skirstomojo įrenginio spintelės korpuso apvalkalas ir kiekvieno funkcinio bloko plokštės yra pritvirtintos iš aliuminio ir ZINC dengtų plieninių plokštelių. Skirstomojo įrenginio apvalkalo apsaugos lygis pasiekia IP4X, o kiekvienos skyriaus skaidinio plokštės ir grandinės pertraukiklio durų apsaugos lygis yra P2X, kai ji atidaroma. „Kyn28-12“ tipo HV skirstomieji įrenginiai gali būti aprūpinti VS1, Zn 12v vakuuminio grandinės pertraukiklio rankiniu būdu ir VD4 vakuuminio grandinės pertraukiklio rankdarbiu bei VC vakuuminio kontaktoriaus, kurį sukūrė „ABB Company“. Skirstomieji įrenginiai gali būti sumontuoti dvigubose spintelėse, tai yra, pagal „back-to-back“. Jungiklio spintelės montavimą ir derinimą galima atlikti priekyje, todėl jungiklio spintelę galima sumontuoti prie sienos. Didžiausias montavimo prie sienos pranašumas yra grindų plotas. Be to, HV skirstomieji įrenginiai gali būti montuojami be sienos, tai yra, dvipusės priežiūros tipo. Dviejų vidinės struktūros išdėstymas yra nenuoseklus, o jo pranašumas yra patogus priežiūra.


◆ HV skirstomųjų įrenginių struktūra

Hv Switchgear

◆ KYN28-12 tipo HV skirstomojo įrenginio apžvalga

HV skirstomųjų įrenginių spintelės apvalkalas ir pertvara yra pagaminti iš aliuminio-ZINC dengtų plieninių plokščių arba plieninių plokščių, varžtų po to, kai juos apdorojamos ir sulenktos CNC staklės, o surinkta jungiklio spintelė gali išlaikyti vienodumą. Aliuminio-cinko dengta plieno plokštė turi stiprų anti-koroziją ir antioksidacijos poveikį ir didesnį mechaninį stiprumą nei ta pati plieninė plokštė. HV skirstomųjų įrenginių vidus yra padalintas į 1. 2 rankdarbio kambarys. 3 autobusų kambarys. Kabelinė kambarys 4. Relės prietaisų kambarys, o kiekvieno įrenginio apvalkalas turi nepriklausomą įžeminimą. Visos skirstomųjų įrenginių durys yra purškiamos elektrostatiniu plastiku, kad jų paviršiai turėtų atsparumo smūgiui, atsparumą korozijai ir gražią išvaizdą (vartotojai gali pritaikyti spalvą).


◆ apvalkalas ir skaidinys

„Kyn28-12“ tipo HV skirstomųjų įrenginių apvalkalas ir skaidinys yra pagaminti iš aukštos kokybės importuotų aliuminiškai dengtų cinko plieno plokštelių, kurios yra varžomos po CNC staklių, todėl surinktas HV skirstomojo įrenginio dydis gali išlaikyti vienodumą. Jis turi stiprų atsparumą korozijai ir atsparumui oksidacijai ir turi didesnį mechaninį stiprumą nei ta pati plieninė plokštė. HV skirstomieji įrenginiai yra padalyti į rankinių kambarių kambarį (grandinės pertraukiklio skyrius), autobusų kambarys, kabelinė patalpa ir relės prietaisų kambarys (žemos įtampos kambarys) pagal pertvarą. Kiekvieno vieneto apvalkalas yra savarankiškai įžemintas.


◆ HV skirstomųjų įrenginių kontūro matmenys yra tokie, kaip „Belows“

Aukštis (b)

2300 mm

Plotis (a)

Kai filialo autobuso vardinė srovė yra mažesnė nei 1600A, o trumpojo jungimo lūžio srovė yra 31,5ka,

800 mm

Kai filialo autobusas yra aukštesnis nei 1600a.

1000 mm

(C) gylis

Kabelių gaunama ir išeinanti linija

1500 mm

Viršutinės gaunamos ir išeinančios linijos

1660 mm

Svoris

800–1200 kg



Hv SwitchgearHv SwitchgearHv SwitchgearHv Switchgear


Hot Tags: HV skirstomieji įrenginiai, skirstomųjų įrenginių gamintoja Kinija, „Kexun“ tiekėjas, aukštos įtampos spintelių gamykla
Siųsti užklausą
Kontaktinė informacija
Norėdami sužinoti apie kabelinės šakos dėžę, aukštos įtampos skirstomuosius įrenginius, žemos įtampos skirstomojo įrenginio ar kainų sąrašą, palikite mums el. Laišką ir mes susisieksime per 24 valandas.
X
Naudojame slapukus siekdami pasiūlyti geresnę naršymo patirtį, analizuoti svetainės srautą ir suasmeninti turinį. Naudodamiesi šia svetaine sutinkate su mūsų slapukų naudojimu. Privatumo politika
Atmesti Priimti